VIA PAOLI **NS ESCLUSIVA**
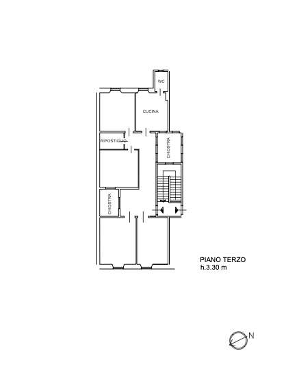
Centralissimo e ben servito, proponiamo in vendita un appartamento di AMPIA METRATURA situato al terzo piano di un condominio privo di ascensore.
L’immobile, di circa 128 mq, si distingue per gli spazi generosi e per la luminosità che caratterizza gli ambienti, offrendo un grande potenziale per chi desidera realizzare una casa su misura, modellata secondo i propri gusti ed esigenze.
Attualmente DA RISTRUTTURARE, rappresenta una soluzione ideale sia come investimento sia per chi è alla ricerca di un’abitazione da personalizzare completamente.
La disposizione interna consente di sviluppare una zona giorno accogliente e funzionale, affiancata da TRE CAMERE da letto ben dimensionate, perfette per famiglie o per chi necessita di ambienti versatili.
Il vero punto di forza è il prezzo particolarmente interessante, che permette di affrontare con maggiore serenità i lavori di ristrutturazione, valorizzando al massimo le potenzialità dell’immobile.
Una proposta ideale per chi desidera creare un ambiente unico, partendo da una base solida di metratura e luminosità, in una zona tranquilla ma comunque centrale della città.
Il prezzo richiesto è di € 117.000
Rif. V001333
CLASSE ENERGETICA G IPE 175



















