ESCLUSIVA CONDIVISA CON BLU IMMOBILIARE.
Nel cuore della rinomata Banditella, in un contesto riservato e immerso nel verde, proponiamo una residenza di rara eleganza, caratterizzata da ambienti ampi, sviluppo su più livelli e una straordinaria vivibilità degli spazi.
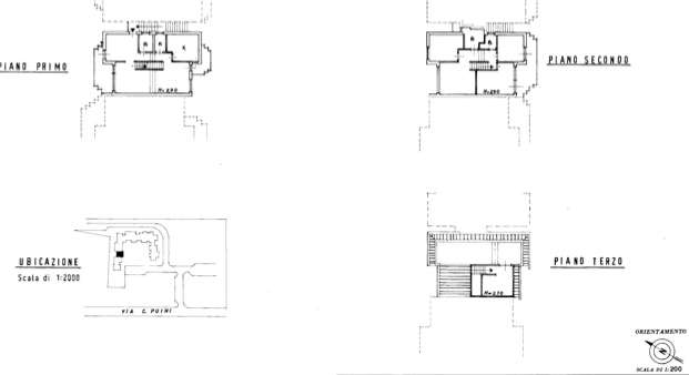
L’ingresso si apre su un raffinato salottino con BALCONE, condiviso con il DOPPIO SALONE adiacente impreziosito dal CAMINO, fulcro della casa, dove luce e volumi si fondono in un’atmosfera accogliente e rappresentativa. La zona giorno si completa con una sala da pranzo anch’essa dotata di BALCONE, cucina abitabile, bagno e comodo ripostiglio.
La zona notte, al livello superiore, offre TRE CAMERE, di cui due con BALCONE e due servizi, arricchita da un suggestivo ballatoio affacciato sul soggiorno, ideale come area studio o spazio relax dal forte impatto architettonico.
All’ultimo livello, uno spazio riservato e versatile conduce alla magnifica TERRAZZA CON VISTA MARE, perfetta per momenti di privacy, convivialità e relax, in un contesto di assoluta quiete.
La proprietà è dotata di spazi accessori di valore, tra cui un AMPIO GARAGE e un POSTO AUTO, garantendo praticità e comfort nella vita quotidiana.
L’immobile, da rimodernare, rappresenta una soluzione ideale per chi desidera creare una dimora su misura, valorizzando una base architettonica già di grande fascino.
Una proposta rivolta a chi ricerca esclusività, riservatezza e qualità abitativa in una delle zone più apprezzate della città.
Il prezzo richiesto è di € 599.000
Rif. V001318
CLASSE ENERGETICA G IPE 175
































