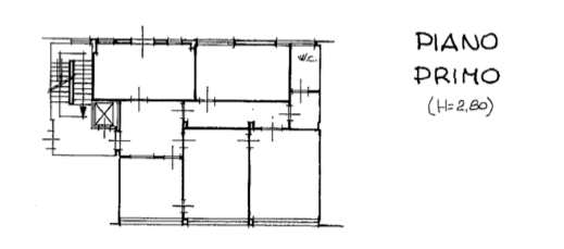
ADIACENZE MERCATO CENTRALE. Vendesi ampio ufficio formato da 5 vani oltre ai servizi al primo piano di un condominio dotato di ascensore. Euro 200.000 Rif.V000684 CLASSE G IPE 90,009
UFFICIO SUI CANALI
Livorno
–
SCALI BETTARINI
200000 €
Condividi su:
MQ COMMERCIALI
M²
102
NUMERO
CAMERE
-
NUMERO
BAGNI
1
MQ GIARDINO
M²
-
Descrizione
Descrizione
Codice:
V000684
Totale piani
-
Categoria:
Ufficio
Classe energetica
G
Comune
Livorno
Stato Immobile
Buono
Locali / vani
5
Grado
-
Camere
-
Lati Liberi
Bagni
1
Giardino
-
Mq commerciali
102
Tipo Soggiorno
Balconi
-
Tipo Cucina
-
Piano
1
Riscaldamento
Centralizzato
Accessori
Ascensore




